Schopnosti Schopnosť
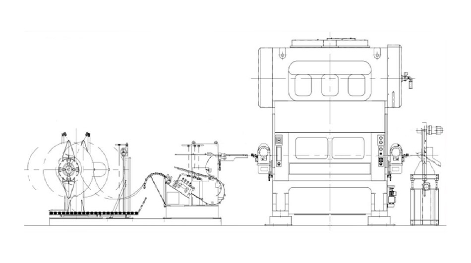
Rezanie (pozdĺžne strihanie)
. Presné rezanie;
. Rezanie na dĺžku;
. Zatemnenie
Celková plocha pozemku
Ročná spotreba ocele
zamestnancov
. Presné rezanie;
. Rezanie na dĺžku;
. Zatemnenie
. laserový generátor IPG
. Vysoká presnosť polohovania – 0,01 mm.
. Rýchla odozva: dodacia lehota na odber vzoriek 7 dní.
. MNOŽSTVO: 5 sád.
. 110 súpravový lis s rozsahom od 16T-400T;
. Nízke náklady na matricu;
. Krátka dodacia lehota na vývoj matrice, menej ako 30 dní pre sériovú výrobu;
. Podpora dopytu po odbere vzoriek;
. Nízkonákladové riešenie z použitia materiálu s výkyvným podávačom;
. Splňte dopyt s nízkym a stredným objemom.
. Nízkonákladové riešenie pre veľké diely;
. Krátka dodacia lehota.
· Viac ako 30 vysokorýchlostných lisov
·Tonáž: 200-400 ton
· Veľkosť stola: 1,2M-3,7M
· Vysokorýchlostné lisy s dĺžkou stola 3,7 metra ponúkajú viacdutinové lisovacie riešenia pre veľké lisovacie diely
Rezanie (pozdĺžne strihanie)
Laserové rezanie
Zložené razenie (všeobecné razenie)
Vrúbkovanie
Vysokorýchlostné progresívne razenie
. Viac ako 15 strojov na tlakové liatie na splnenie rôznych potrieb aplikácie
. Horizontálne automatické odlievacie stroje s tonážnym rozsahom 280T až 560T
. Vertikálny vákuový odlievací stroj s tonážou 200T
. Vertikálne odlievacie stroje schopné prepínať medzi zliatinami medi a hliníka
· Viackanálová prevádzka
· Automatické meranie výšky
· Automatická detekcia typu drážky
· Automatické tlakovanie
· Automatické označovanie
· Automatické skenovanie a kontrola kvality
· Automatické odstraňovanie prachu a ochrana proti hrdzi
· Automatické triedenie a sledovateľnosť údajov
· Každá výrobná linka na vysokorýchlostné lisovanie je vybavená automatickou rotorovou linkou.
· Viac ako 25 plne automatizovaných statorových zváracích liniek vybavených funkciami, ako je váženie, meranie kritických rozmerov, vizuálna kontrola porovnávania zvarov, automatická kontrola cudzích predmetov v štrbinách, automatické kódovanie, automatické triedenie a sledovateľnosť údajov.
· Statorová laserová zváracia stanica
· Robotická zváracia stanica TIG (Tungsten Inert Gas).
· Rotačná viacpolohová zváracia stanica TIG
· Spĺňajte personalizované potreby produktov s rôznymi veľkosťami šarží
Ponúka procesy, ako je orezávanie statora, nitovanie a ručné klinčovanie na laminovanie. Využíva tradičné až pokročilé metódy lisovania statorov, vrátane mechanického lisovania a lisovania servolisov. Tento prístup poskytuje nielen nízkonákladové technické riešenia pre dodávku vzoriek a malých sérií produktov, ale ponúka aj vysoko presné a prispôsobené inžinierske riešenia, ktoré spĺňajú rôzne potreby zákazníkov.
Dielňa na vinutie statora;
Manuálne navíjanie a automatické navíjanie, s výrobnou kapacitou 100 000 jednotiek.
Jufeng pomáha zákazníkom dosiahnuť ciele znižovania nákladov, zlepšovania efektívnosti, zvyšovania konkurencieschopnosti na trhu a podpory technologických inovácií prostredníctvom definovania hodnoty, analýzy, zlepšovania a overovania v rôznych aspektoch, ako je dizajn produktu, výrobné procesy a výber materiálu.
Jufeng ponúka služby FEA (Finite Element Analysis), ktorých cieľom je analyzovať elektromagnetický, mechanický a tepelný výkon jadier statora a rotora pomocou metódy konečných prvkov. To pomáha zákazníkom znižovať náklady, zvyšovať efektivitu a zvyšovať ich konkurencieschopnosť na trhu.
Odlievanie pod tlakom
Automatická rotorová linka
Zváranie statora
Lisovanie statora
Vinutie statora
VAVE
FEA
Jufeng Technology so svojou rozsiahlou databázou výkonových vzoriek kremíkovej ocele má hlbokú technickú akumuláciu v oblasti elektroocele. Poskytuje presnú podporu pre dizajn motora, zaisťuje optimalizovaný dizajn a zabraňuje prebytku. Dokáže vybrať vysokokvalitný výkon v rámci rovnakej triedy, čím sa zvýši účinnosť motora.
Jufeng Technology je hlboko zapojená do oblasti razenia už dlhú dobu, pričom nazbierala množstvo skúseností a vyvinula rôzne technické riešenia razenia, ako je zložené razenie, oscilačné razenie, razenie s jednou drážkou a vysokorýchlostné progresívne razenie. Tieto riešenia môžu spĺňať požiadavky rôznych veľkostí sérií, úrovní presnosti a dodacích lehôt a poskytujú zákazníkom efektívne a presné služby razenia.
Technológia Jufeng, využívajúca svoje požadované možnosti konštrukcie motora, úspešne vyvinula sériu vysoko účinných motorov a získala viacero patentov. Základný dizajn spoločnosti dosiahol serializáciu a štandardizáciu, spĺňa požiadavky na vysoký výkon a zároveň efektívne kontroluje náklady, čo z neho robí spoľahlivú hodnotnú podporu pre zákazníkov motorov.
Jufeng Technology vyvinula procesy lepenia po formovaní, lepenia vo forme a samolepiacich procesov, aby vyhovovala rôznym potrebám šarží a aplikácií jadier motorov. Optimalizáciou výroby zvýšili efektívnosť a znížili náklady, dosiahli rovnováhu medzi komplexnými nákladmi a účinnosťou motora, čím priniesli významný technologický pokrok a ekonomické výhody do výroby motorov.
Proces žíhania pre výlisky z kremíkovej ocele môže uvoľniť lisovacie napätie, podporiť optimalizáciu a rast zŕn, účinne otupovať otrepy a výrazne zvýšiť elektromagnetický výkon. Tento proces optimalizuje štruktúru materiálu presným riadením procesov vykurovania a chladenia, znižovaním strát železa a zlepšovaním energetickej účinnosti, pričom vykazuje požadovaný výkon vo veľkej väčšine aplikácií motorov.
Výber materiálu
Vývoj technológie lisovania
Dizajn jadra motora
Zámok na lepidlo
Žíhanie
Pridať: 369 Huanzhen East Road, Changle Town, Shengzhou City, provincia Zhejiang, Čína
Pridať: č. 1007 East Huanzhen Road, Changle Town, Shengzhou City, Zhejiang Province, Čína
Pridať: Wenhe Road č. 555, zóna ekonomického rozvoja, mesto Tongxiang, mesto Jiaxing, provincia Zhejiang, Čína











